Faraday Spectrum, building F

2222 Faraday Ave., Carlsbad, CA 92008

New R& D class building 8800 sft located in Carlsbad Research Center. Purchase contract was signed in 2005 even before grading began, so current value substantially exceed original price.

Del Mar Photonics Faraday Spectrum building: 2222 Faraday Avenue, Carlsbad, CA 92008

more pictures

   Del Mar Photonics Faraday Spectrum building: 2222 Faraday Avenue, Carlsbad, CA 92008
Front - South Elevation
 

Back - North Elevation
 

East Elevation
 

  West Elevation
 


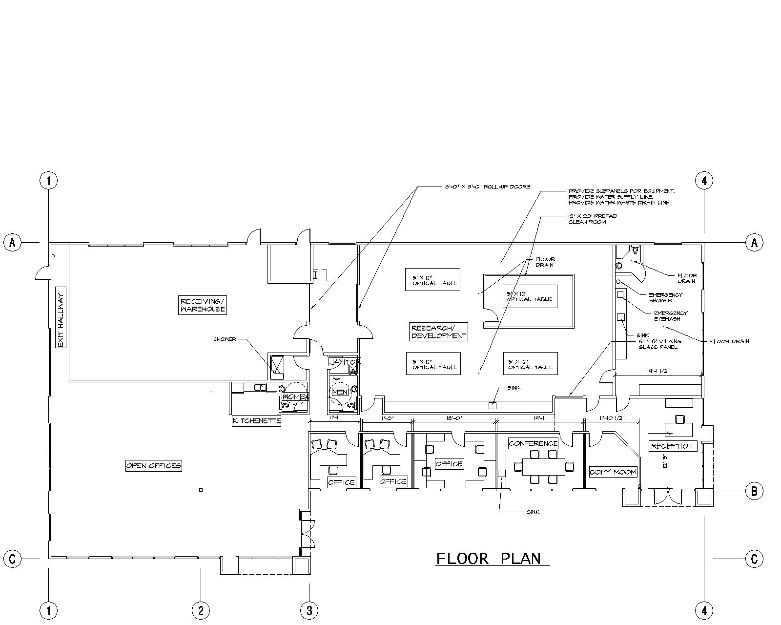
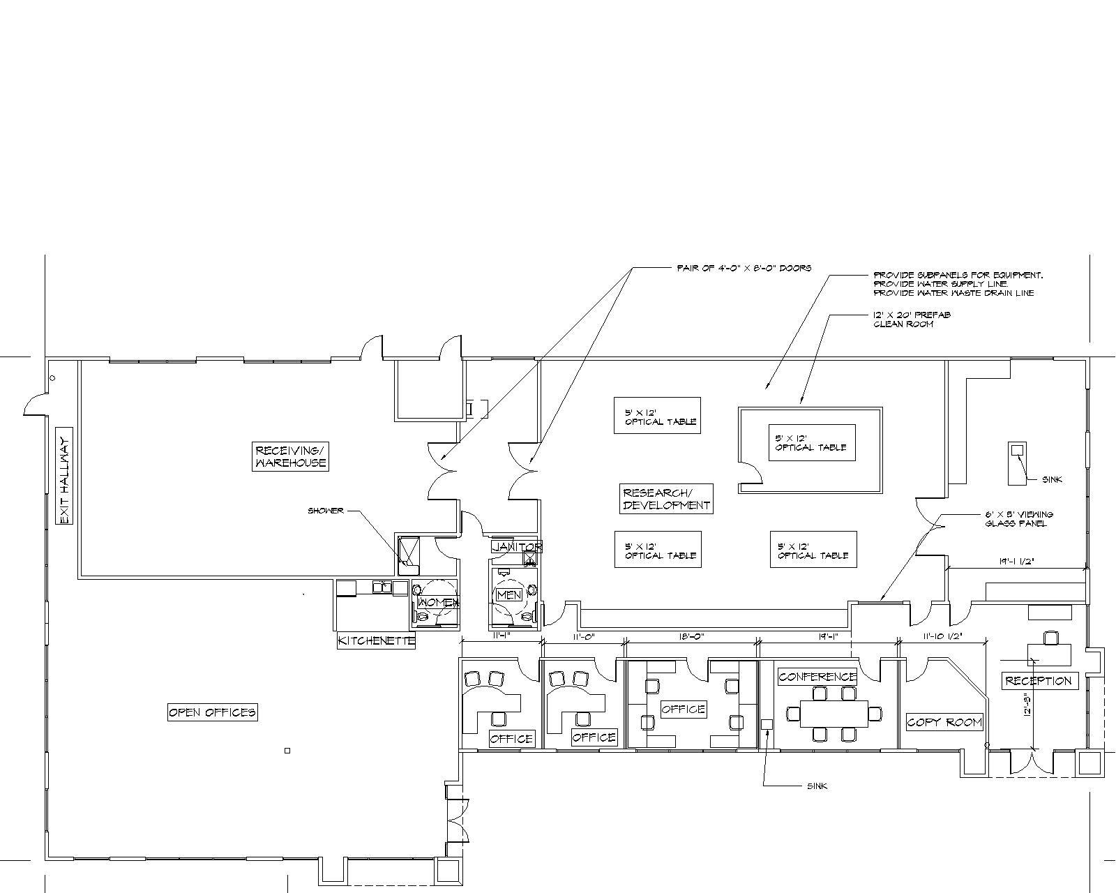
Proposed TI (Tenant Improvements)

 R&D including Laser and Chem/Bio Lab

R&D including Laser and "service" room

 

 

 


 

Click for detailed map